
Extensible Housing*
*Extensible- Extensibility is defined as “the quality of being designed to allow the addition of new capabilities or functionality.” It is a measure of the ability to extend a system and the level of effort required to implement the extensions.
Glenview, Hospital, Co Limerick
33 Social Housing units(Phase 1- 1,900 sqm, completed 2023, €4m, BER A)
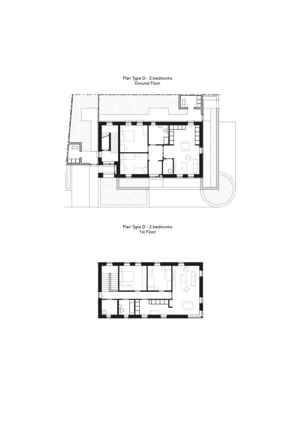
This social housing is based on the principles of the Lifetime Homes Standard, a set of design criteria intended to make homes more easily adaptable for lifetime use at minimal cost.


To that end we provided;
(i) A suitable through floor lift position from ground to first floors
(ii) A suitable downstairs temporary bed position.
(iii) A longer-term downstairs bedroom and shower room provision, and last but not least
(iv) The provision of an in-built pre-planned cost-effective attic conversion.
The design strategy chosen optimises the shape of the site by locating the built form around the perimeter to create a central green space. This arrangement allowed us to include houses and apartments of different sizes in a coherent manner.


We have incorporated in the design, a clear delineation of public and private space, active street frontages and effective organisation of vehicular and pedestrian access.

As precedents, we looked at planned interventions to Irish villages as a model to extend and reinforce the urban fabric, e.g Kings Square in Mitchelstown. The character of the terraces is similar in scale and density to historic planned towns such as Tyrellspass where a precise architectural language orders and encloses public open space, streets and squares.
Emmett Square in Clonakilty or Kings Square in Mitchelstown are other examples of sophisticated architectural expression used to make legible urban spaces in the context of quite small towns.



Emphasis has been placed on the communal areas such as the future square and the new hard landscaping, conceived of as a shared surface or ‘Homezone’. This is the term for a street where people and vehicles share the whole of the road space safely and on equal terms; and where quality of life takes precedence over ease of traffic movement.


The development at Glenview is an appropriate candidate for a shared-surface Homezone. It is a cul-de-sac of relatively few housing units and it adjoins an open space near the centre of town. The house forms themselves are innovative in that they contain within the built volume a ready-made extension.
Design commenced in 2017, Part 8 permission was applied for in 2018, construction started in March 2020 and was completed in December 2023
Extensible Housing Drawings
Access a PDF from Architecture Ireland about the Extensible Housing project below.